このページを印刷する
- 価格
-
3,198万円
- 間取
-
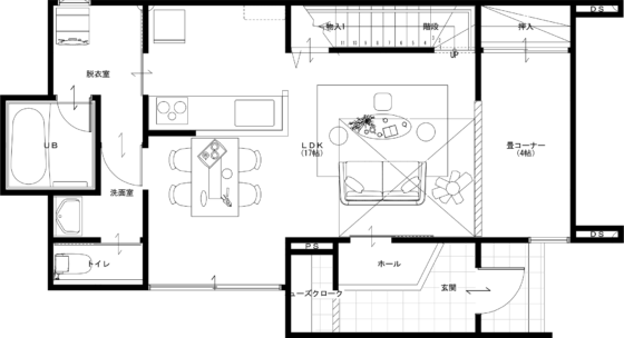
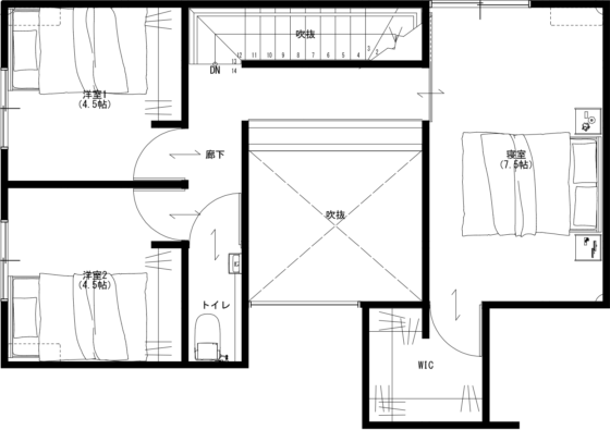
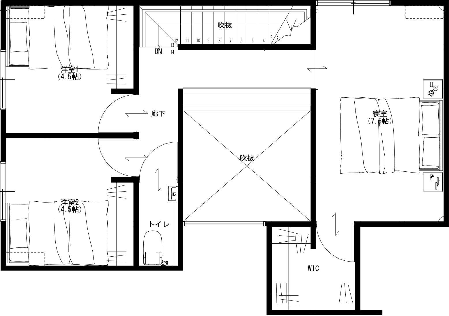
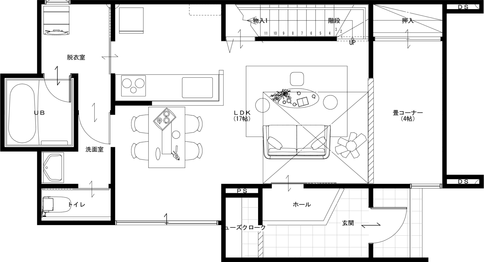
4SLDK
| 所在地 | 熊本県熊本市西区西区城山半田3丁目 |
|---|---|
| 建物名 | 西区城山半田3丁目新築戸建て |
| 交通 |
|
| 築年月 | 新築/中古 | 新築 | |
|---|---|---|---|
| 面積 | 98.54m²(29.8坪) | 計測方式 | |
| バルコニー | 向き | ||
| 建物階数 | 所在階 | ||
| 部屋番号/区画番号 | --- | 総戸数/総区画数 | --- |
| 建物構造 | 木造 | ||
| 敷地全体面積 | 202.49m²(61.25坪) | 延べ床面積 | |
| 間取内容 | |||
| 駐車場 | 取引態様 | ||
| 引渡/入居時期 | 現況 | ||
| 地目 | 宅地 | 用途地域 | 無指定 |
| 土地面積 | 202.49m²(61.25坪) | 土地面積計測方式 | |
| 建ぺい率 | 40% | 容積率 | 80% |
| 周辺環境 | |||
| 設備・条件 |
|
||
| 学区 | |||
| 物件カテゴリー | |||
| 物件番号 | 3941 | ||
| 情報登録日 | 2026年4月21日 | 情報更新日 | 2026年4月23日 |
物件掲載内容と現況に相違がある場合は現況を優先といたします。
物件周辺マップ
Loading...
ご注意
- 物件によっては正確な位置を示していない場合がございます。
- 現況が表示された内容と異なる場合は現況優先といたします。
- 表示されてる地図はGoogle社より提供されてるデータに基づいたものであり、表示内容についての責任は負いかねます。































