
外観水平線が描く、邸宅の品格。 おしゃれで機能的な「濡れずに玄関へアクセスできるガレージのある2階建て」の建築プラン。デザイン性と実用性を両立させた、モダンな住まいのコンセプトのご提案です。

居間「おかえり」の鼓動を、リビングで感じる贅沢。

見上げれば子供たちの笑顔、窓の外には愛車。幸せの視線が交差する。

寝室主寝室(6.1帖)+ WIC(2帖): 北側に位置し、静寂と安眠を確保。

洋室子供部屋(4.4帖)× 2室: 北側に配置。廊下に出ればすぐに家族と視覚的に繋がれる設計。

洋室子供部屋(4.4帖)× 2室: 北側に配置。廊下に出ればすぐに家族と視覚的に繋がれる設計。

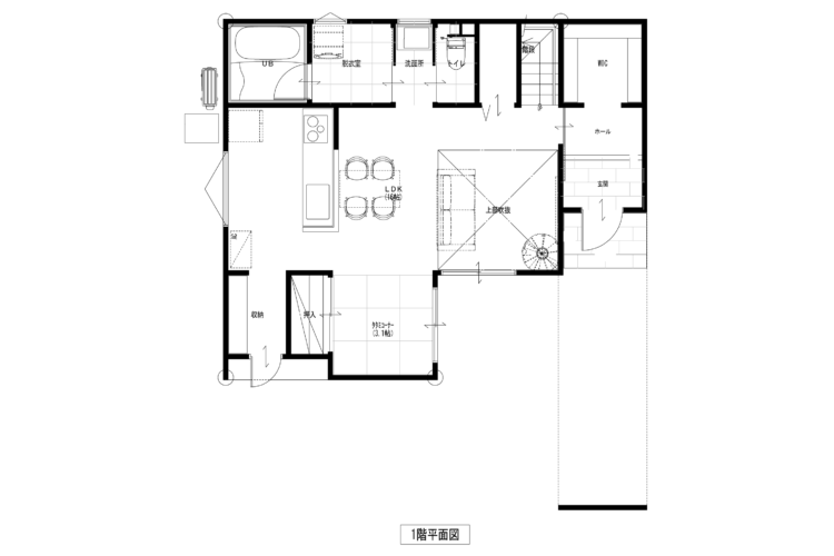
間取1階の間取り:開放的なセンターキッチン・プラン 20.5帖の大空間(16帖LDK+4.5帖和室): キッチンに立つと、正面にリビング、横に和室、そして吹き抜け越しに2階の気配まで感じられます。 愛車への視線: キッチンやソファから、大きな窓越しに愛車を鑑賞。 玄関・WIC・家事動線: ガレージ ↔ 玄関 ↔ WIC ↔ リビング↔ キッチン。

間取2階の廊下を単なる通路ではなく、1階と2階、そして家族をつなぐ「架け橋」として設計。吹き抜けに面した手すり越しに、リビングの賑わいやガレージの愛車を眺めることができる、ギャラリーのような住まいです。
- 前へ
- 次へ
このページを印刷する
- 価格
-
2,998万円
- 間取
-
4SLDK
| 所在地 | 熊本県熊本市南区熊本市南区富合町田尻 |
|---|---|
| 建物名 | 南区富合町田尻2期建売 |
| 交通 |
|
| 築年月 | 2026年5月 | 新築/中古 | 新築 |
|---|---|---|---|
| 面積 | 計測方式 | ||
| バルコニー | 向き | ||
| 建物階数 | 地上2階 | 所在階 | |
| 部屋番号/区画番号 | --- | 総戸数/総区画数 | --- |
| 建物構造 | 木造 | ||
| 敷地全体面積 | 延べ床面積 | 99.15m²(29.99坪) | |
| 間取内容 | |||
| 駐車場 | 取引態様 | 仲介 | |
| 引渡/入居時期 | 相談 | 現況 | 未完成 |
| 地目 | 宅地 | 用途地域 | 無指定 |
| 都市計画 | 市街化調整区域 | 地勢 | |
| 土地面積 | 201.07m²(60.82坪) | 土地面積計測方式 | |
| 建ぺい率 | 40% | 容積率 | 80% |
| 土地権利 | 所有権 | 接道状況 | 二方(除角地) |
| 接道方向1 | 東 | 接道間口1 | 14.2m |
| 接道種別1 | 公道 | 接道幅員1 | 5m |
| 接道方向2 | 北 | 接道間口2 | 11.2m |
| 接道種別2 | 公道 | 接道幅員2 | 5m |
| 周辺環境 | |||
| 設備・条件 |
|
||
| 学区 | |||
| 物件カテゴリー | |||
| 自社物 | 先物 | 状態 | |
| 物件番号 | 3711 | ||
| 情報登録日 | 2026年2月22日 | 情報更新日 | 2026年2月23日 |
物件掲載内容と現況に相違がある場合は現況を優先といたします。







